Modernisierungsbedürftiges Einfamilienhaus mit Doppelgarage -optimal für den Selfmade-Handwerker-
369.000,- EUR Marxen | Einfamilienhaus | 150m² | 5,5 ZimmerLage
Der kleine und familienfreundliche Ort Marxen ist in landschaftlich reizvoller Umgebung – in der Samtgemeinde Hanstedt gelegen. Die Lage zeichnet sich durch ihre naturnahe Umgebung aus, ideal für alle, die eine familienfreundliche und kindgerechte Wohnlage schätzen. In Marxen gibt es eine Kinderkrippe -und einen Kindergarten. Die Schülerbeförderung in die Nachbargemeinden ist durch mehrere Buslinien gewährleistet. Eine gute Grundversorgung ist in den angrenzenden Orten wie z.B. Ramelsloh, Jesteburg oder Hanstedt gegeben. Weiterhin sind eine Tennisanlage, ein Fußballspielfeld und ein überregional bekannter gastronomischer Betrieb vorzufinden. Liebhaber des Golf- und Reitsports kommen ebenfalls auf ihre Kosten. Im Umkreis von 15km sind mehrere Plätze und Anlagen vorzufinden. Ideal sind die Verkehrsanbindungen zu den Autobahnen A 7 (AS Ramelsloh) und A 1 (AS Hittfeld) in schneller Erreichbarkeit sowie der Fernbahnanschluss (Hamburg-Bremen) im nahegelegenen Hittfeld und die Busverbindungen nach Hamburg-Harburg, Buchholz und Winsen.
Objektbeschreibung
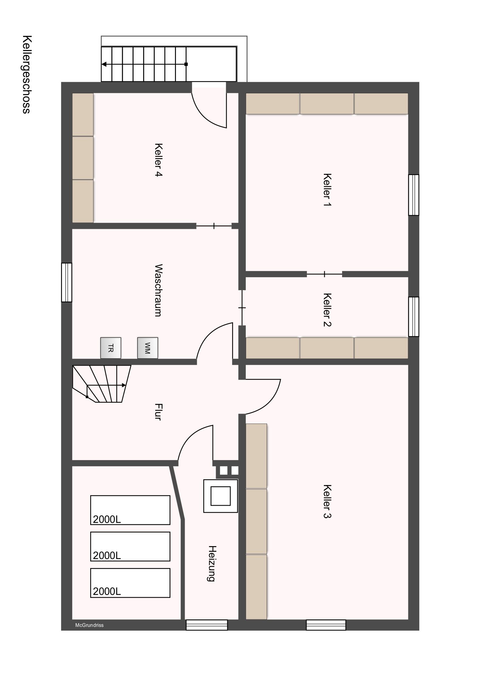
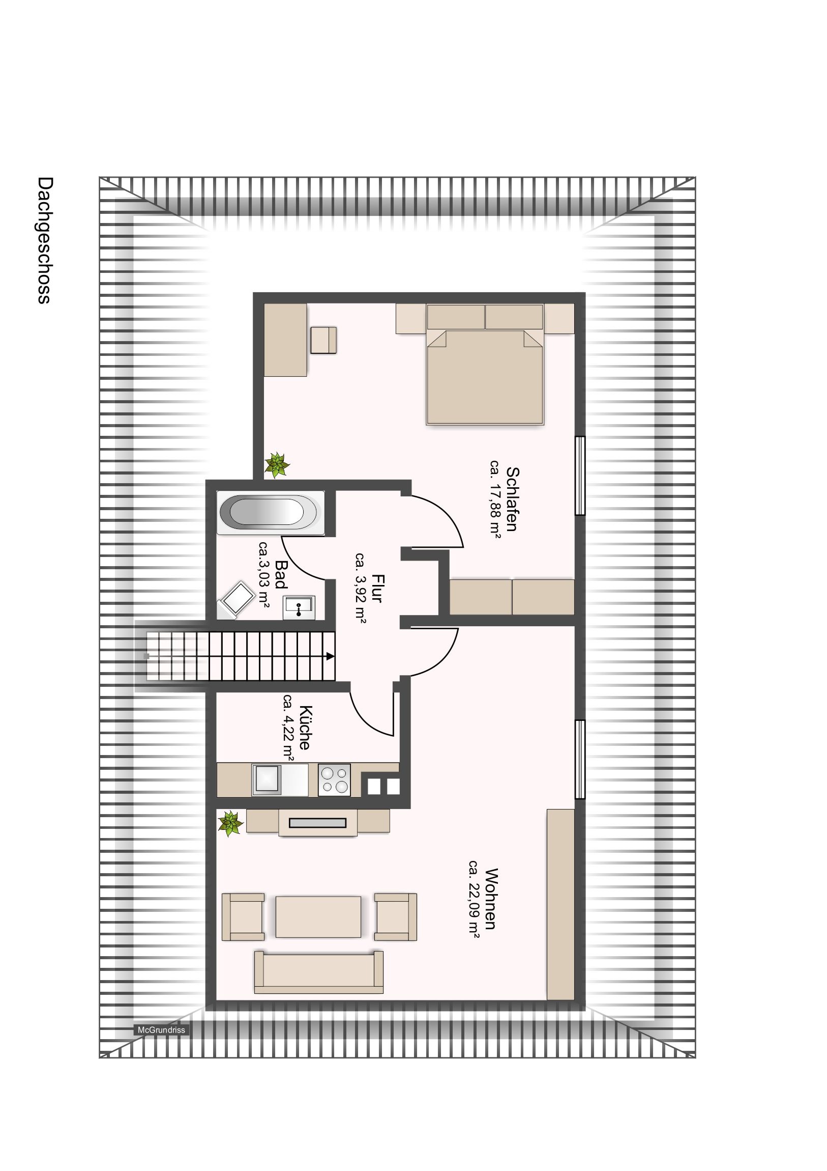
Die hier angebotene Immobilie wurde 1972 in 1-geschossiger Bauweise mit ausgebautem Dachgeschoss und einem Vollkeller errichtet. Das Gebäude steht derzeit auf einem 2.168 m² großem Grundstück, von dem 1.165 m² diesem Objekt zugeordnet und im Kaufpreis berücksichtigt sind. Das Gebäude verfügt über eine Klinkerfassade und ein pfannengedecktes Walmdach. Neben dem Wohngebäude steht auf dem Hof eine massive Doppelgarage zur Verfügung. Die Wohnfläche des Hauses beträgt rd. 150 m². Das geräumige Erdgeschoss verfügt über 3,5 -Zimmer, Küche, Vollbad und ein Gäste-WC. Besonders hervorzuheben ist der großzügige Wohn-Essbereich. Große Fensterelemente sorgen für eine optimale Belichtung des Raumes. Eine nach Süden ausgerichtete Terrasse lädt zum Sonnen und Verweilen ein. Das Obergeschoss wurde als Einliegerwohnung mit 2 Zimmern, Küche und einem Duschbad konzipiert, die Wohnfläche beträgt ca. 51 m². Weitere Nutzfläche ist im Vollkeller vorzufinden. Dieser ist sowohl über das Erdgeschoss als auch über eine Außentreppe zu erreichen. Die Ausstattung des Hauses entspricht dem Baujahr, wie auch der allgemeine energetische und dekorative Zustand. Die Beheizung und Warmwasserversorgung erfolgt über eine ältere Ölzentralheizung. Insgesamt bietet das Objekt eine Vielzahl von Nutzungsmöglichkeiten. Das Gebäude ist derzeit unbewohnt und könnte nach wenigen Renovierungsmaßnahmen kurzfristig bezogen werden. Den genauen Zuschnitt entnehmen Sie bitte den beigefügten Grundrissen. Diese Immobilie wird im Gemeinschaftsgeschäft der Firmen Peter Börke Immobilienvermittlung und Erdtmann Immobilien, Jesteburg zum Kauf angeboten.
Eckdaten
Baujahr 1972
Zimmer 5,5
Wohnfläche rd. 150m²
Nutzfläche rd. 100m²
Grundstück ca. 1.165 m²
Bäder 2 + Gäste-WC
Doppelgarage 1
Heizung Ölzentral
Kaufpreis € 369.000,-
Energieausweis B – 203,36 kWh/(m²*a), Öl, Bj. 72, G
Bei Abschluss eines notariellen Kaufvertrages sind Käufer und der Verkäufer verpflichtet (sofern es sich bei einem Käufer um eine Privatperson handelt), jeweils eine Maklercourtage in Höhe von 3 % inkl. ges. MwSt., ansonsten 6 % inkl. MwSt. (für einen Käufer, wenn es sich um eine juristische Person handelt), bezogen auf den vereinbarten Kaufpreis, an die Firmen Peter Börke Immobilienvermittlung und Erdtmann Immobilien zu zahlen. Die Maklercourtage ist mit Abschluss des notariellen Kaufvertrages verdient und zur Zahlung fällig. Die Grunderwerbsteuer sowie die Notar- und Gerichtskosten sind vom Käufer zu tragen. Alle Angaben über diese Immobilie beruhen auf Informationen, die uns der Auftraggeber zur Verfügung gestellt hat. Für die Richtigkeit, Aktualität und Vollständigkeit dieser Angaben übernehmen wir keine Gewähr. Irrtum und Zwischenverkauf vorbehalten.
| Angebots-ID: | 684 |
| Verfügbar ab: | 01.11.2025 |
| Kaufpreis: | 369.000,- EUR |
| Provision für Käufer: | 3% inkl. MwSt. |
| Provision für Verkäufer: | 3% inkl. MwSt. |
| Zimmer: | 5,5 |
| Schlafzimmer: | 3 |
| Badezimmer: | 2 |
| Kellerräume: | 4 |
| Wohnfläche: | 150 m² |
| Grundstücksfläche: | 1165 m² |
| Nutzfläche: | 100 m² |
| Baujahr: | 1972 |
| Objektzustand: | renovierungsbedürftig |
| Ausstattungskategorie: | Standard |
| Heizungsart: | Zentralheizung |
| Befeuerungsart: | Öl |
| Wert des Endenergiebedarfs: | 203,36 |
| Art des Energieausweises: | Bedarfsausweis |
| Energieeffizienzklasse: | G |
| Baujahr lt. Energieausweis: | 1972 |











