Renovierungsbedürftiges Ein-bis Zweifamilienhaus in idyllischer und bester Ortslage
349.000,- EUR Jesteburg | Zweifamilienhaus | 155m² | 6 ZimmerLage
Das Grundstück ist in bester und absolut zentraler Lage des Jesteburger Ortskerns gelegen. Die nähere Umgebung ist von Fachwerkbauten und kleineren Wohn- und Geschäftshäusern geprägt. Herrliche Spazier- und Wanderwege sind in unmittelbarer Nähe am Flusslauf der Seeve vorzufinden. Durch die zentrale Lage sind alle Einrichtungen des öffentlichen Lebens bequem zu Fuß erreichbar. Sehr gute Einkaufsmöglichkeiten, Ärzte, Banken und Apotheken sowie ein breites gastronomisches Angebot befinden sich quasi „um die Ecke“. Seit Sommer 2014 gibt es in Jesteburg auch eine Oberschule mit gymnasialem Angebot. Auch das Freizeitangebot ist als hervorragend zu bezeichnen. Der VfL Jesteburg bietet viele Sparten für Sportaktivitäten an. Das Tennis- und Reitzentrum, sowie das moderne „Jesteburger Schwimmbad“ sind sehr beliebt. Für die Liebhaber des Golfsports sind 3 Plätze im Umkreis von ca. 10 km vorhanden. Ideal sind die Verkehrsanbindungen, die Autobahnen A 7 und A 1 in schneller Erreichbarkeit, der Bahnanschluss im nahegelegenen Buchholz sowie die Busverbindungen nach Hamburg-Harburg und Winsen.
Objekt
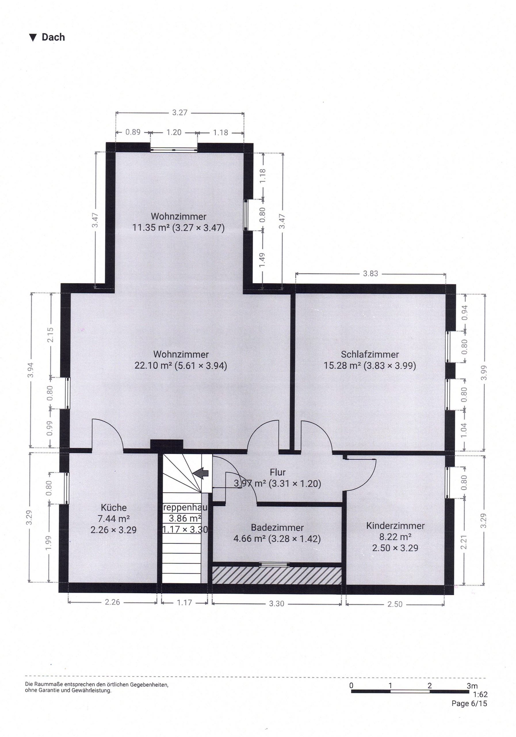
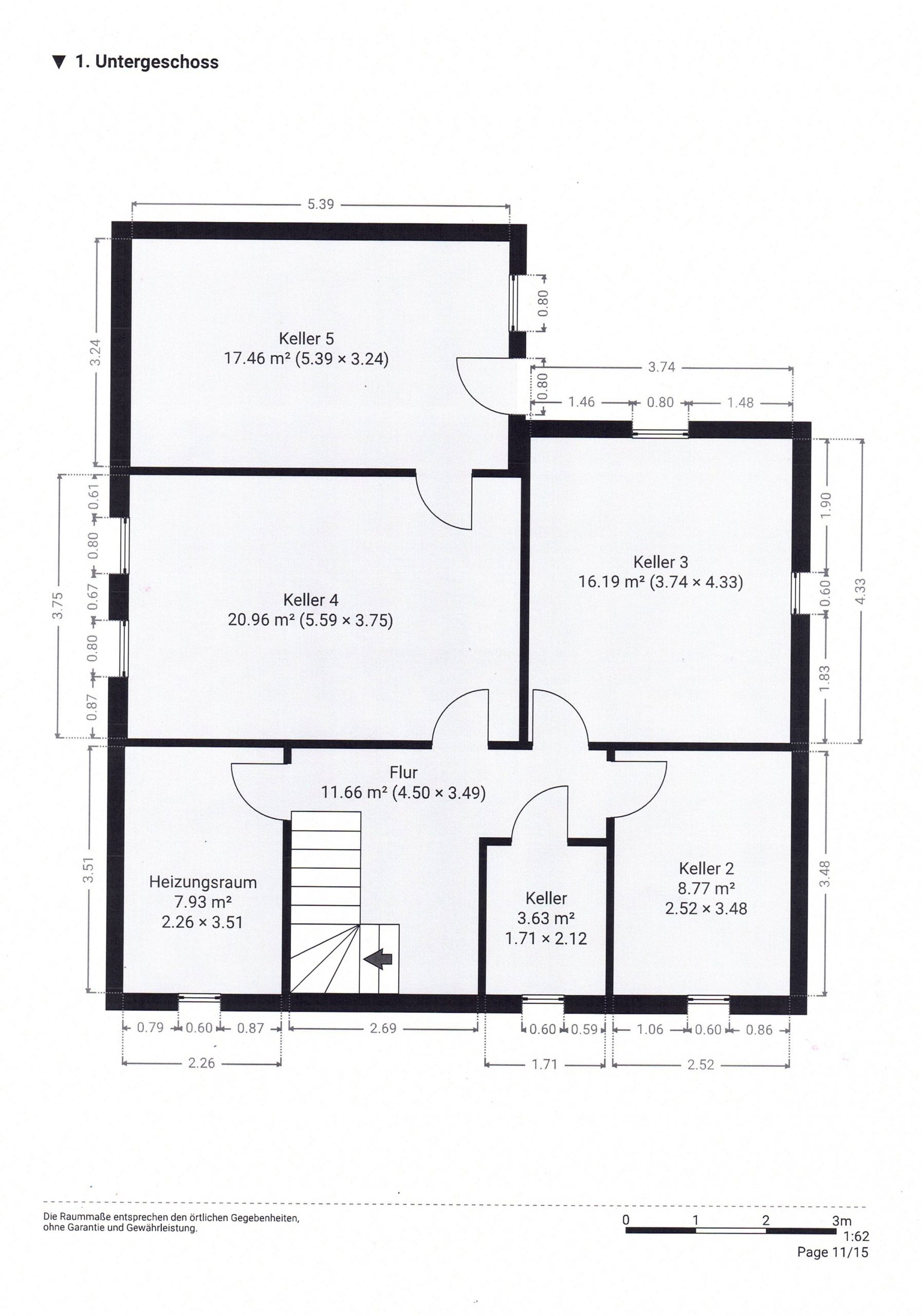
Das solide Ein- bis Zweifamilienhaus wurde im Jahr 1962 in konventioneller Bauweise errichtet. Im Jahr 1988 wurde das Gebäude durch einen Anbau erweitert. Die Fassade ist mit einem zeitlosen roten Klinker versehen. Das 600m² große Grundstück ist in absolut idyllischer und zentraler Ortslage gelegen. Die Gartenanlage wurde pflegeleicht mit Koniferen und Rhododendron und einer Rasenfläche angelegt. Des Weiteren befindet sich eine wunderschöne, alte Eiche auf dem Grundstück. Das Gebäude verfügt insgesamt über eine Wohnfläche von rund 155m², die sich auf 6 bis 7 Zimmer bzw. zwei Wohneinheiten verteilt. Weitere Nutz- und Abstellfläche bietet der teilweise wohnlich ausgebaute Vollkeller sowie ein geräumiger Dachboden. Das Erdgeschoss besticht durch den großzügigen Wohnbereich. Große Fensterelemente sorgen für eine gute Belichtung des Raumes. Die angrenzende Küche ist in den Wohnbereich integrierbar. Der Einbau eines Kaminofens ist ebenfalls möglich. Im Erdgeschoss sind zwei weitere Zimmer sowie ein Wannenbad vorzufinden. Über eine offene Holztreppe gelangt man ins Dachgeschoss. Dort befinden sich drei weitere Räume, eine kleine vom Wohnzimmer abgehende Küche und ein Duschbad. Grundsätzlich ist das Gebäude auch als Zweifamilienhaus mit zwei separaten Wohneinheiten nutzbar. Die Ausstattung des Hauses stammt aus der Baualtersklasse. Es besteht größerer Renovierungs- bzw. Modernisierungsbedarf. Die Erwärmung und Warmwasseraufbereitung des Hauses erfolgt über eine Ölzentralheizung, die aus dem Jahr 2001 stammt. Vor dem Gebäude befinden sich zwei gepflasterte Pkw-Stellplätze. Insgesamt bietet das Objekt eine Vielzahl von Nutzungsmöglichkeiten. Den genauen Zuschnitt entnehmen Sie bitte den beigefügten Grundrissen.
Eckdaten
Baujahr 1962/1988
Wohnfläche ca. 155m²
Nutzfläche ca. 85m²
Grundstück 600m²
Zimmer 6/7
Bäder 2
Keller vorhanden
Heizung Ölzentral
Kaufpreis € 349.000,-VB
Energieausweis: B – 248,6 kWh/(m²*a), Öl, Bj 1962, G
Bei Abschluss eines notariellen Kaufvertrages sind Käufer und der Verkäufer verpflichtet, jeweils eine Maklercourtage in Höhe von 2,38 % inkl. ges. MwSt., bezogen auf den vereinbarten Kaufpreis, an die Firma Erdtmann Immobilien zu zahlen. Die Maklercourtage ist mit Abschluss des notariellen Kaufvertrages verdient und zur Zahlung fällig. Die Grunderwerbsteuer sowie die Notar- und Gerichtskosten sind vom Käufer zu tragen. Alle Angaben über diese Immobilie beruhen auf Informationen, die uns der Auftraggeber zur Verfügung gestellt hat. Für die Richtigkeit, Aktualität und Vollständigkeit dieser Angaben übernehmen wir keine Gewähr. Irrtum und Zwischenverkauf vorbehalten.
| Angebots-ID: | 637 |
| Verfügbar ab: | sofort |
| Kaufpreis: | 349.000,- EUR |
| Provision für Käufer: | 2,38 % inkl. MwSt. |
| Provision für Verkäufer: | 2,38 % inkl. MwSt. |
| Zimmer: | 6 |
| Schlafzimmer: | 4 |
| Badezimmer: | 2 |
| Kellerräume: | 4 |
| Wohnfläche: | 155 m² |
| Grundstücksfläche: | 600 m² |
| Nutzfläche: | 85 m² |
| Baujahr: | 1962 |
| Objektzustand: | renovierungsbedürftig |
| Heizungsart: | Zentralheizung |
| Befeuerungsart: | Öl |
| Wert des Endenergiebedarfs: | 248,6 |
| Art des Energieausweises: | Bedarfsausweis |
| Energieeffizienzklasse: | G |
| Baujahr lt. Energieausweis: | 1962 |












