Gestalten, verwirklichen, renovieren – Zweifamilienhaus mit vielen Möglichkeiten!
649.000,- EUR Neu-Wulmstorf | Immobilienkauf Häuser | 235m² | 8 ZimmerLage
Die Gemeinde Neu Wulmstorf liegt unmittelbar an der Stadtgrenze zu Hamburg. Die Immobilie ist in einem gewachsenen und zentralen Wohngebiet gelegen. Alle öffentlichen Einrichtungen und Geschäfte sind zu Fuß erreichbar. Kitas, sowie sämtliche Schulformen, Einkaufsmöglichkeiten, Ärzte, Schwimmbad, etc. befinden sich im Ort. Genießen Sie eine besondere Lebensqualität durch die schönen Naherholungsgebiete, wie z.B. das Alte Land mit seinem Obstanbaugebiet oder die Harburger Berge. Die Anbindung an das öffentliche Verkehrsnetz ist als sehr gut zu bezeichnen. Mit der S-Bahn-Station ist Neu-Wulmstorf direkt an den HVV angeschlossen. Die B 73 sowie die Nähe zur Autobahn A 1 und A7 bieten optimale Anschlüsse für Pendler und Gewerbetreibende. Mit Fertigstellung der BAB 26 wird der Standort eine weitere Aufwertung erfahren.
Objektbeschreibung
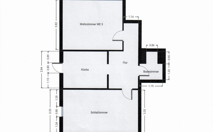
Das solide Zweifamilienhaus wurde 1984/1985 in massiver Bauweise auf einen ca. 697m² großen Grundstück fertiggestellt. Die Fassade des Hauses ist mit einem zeitlosen, roten Verblendstein versehen. Das Gebäude ist teilweise unterkellert. Zwischenzeitlich wurde das Kellergeschoss auch zu Wohnzwecken aus- bzw. umgebaut. Im Erdgeschoss befindet sich eine äußerst großzügige 3-Zimmerwohnung. Die ca. 135m² Wohnfläche verteilen sich auf ein geräumiges Wohn-Esszimmer mit einem Erker zum Garten, ein reelles Schlaf- und Kinderzimmer, eine Wohnküche, ein sehr geräumiges Vollbad sowie ein Gäste-WC. Von der Wohnküche aus gelangt man auf eine eingewachsene Terrasse, die zum Sonnen und Entspannen einlädt. Besonders hervorzuheben, ist der im Wohnbereich befindliche Kamin, der für eine gütliche Atmosphäre und wohlige Wärme sorgt. Über einen separaten Hauseingang ist die Dachgeschosswohnung zu erreichen. Vom Flur gehen alle Räume ab. Ein besonderes Highlight ist der offene und lichtdurchflutete Wohn-Essbereich. Große Fensterelemente gewährleisten eine optimale Belichtung der Räume. Die vorgelagerte und ca. 20m² große Dachterrasse bietet den Bewohnern weitere Nutzungsmöglichkeiten. Die Wohnküche ist mit allen technischen Geräten und Einbauten versehen. Praktisch ist kleiner vom Flur zugänglicher Hauswirtschaftsraum. Ein geräumiges Schlafzimmer und großzügiges Vollbad sind ebenfalls vorhanden. Die Wohnung hat eine Größe von ca. 100m². Weitere Abstell- und Ausbaufläche bietet ein großer, hoher Bodenraum, der direkt von der Wohnung über eine Bodeneinschubtreppe zu erreichen ist. Der Teilkeller wurde nachträglich zu einer dritten Wohneinheit ausgebaut. Der Zugang ist aktuell über eine Außentreppe gewährleistet. Es besteht die Möglichkeit, die Erdgeschosswohnung mit der Souterrainwohnung zu verbinden. Die Wohnräume der 2-Zimmerwohnung sind überwiegend durch Fenster (Souterrain) gut belichtet. Das Grundstück ist arrondiert und eingezäunt. Ein kleiner Teich sowie eine zweite Außenterrasse laden zum Verweilen ein. Eine massiv errichtete Einzelgarage rundet die Gegebenheiten ab. Die Beheizung uns Warmwasseraufbereitung erfolgt über eine ältere Gas-Zentralheizung, die sich im Teilkeller befindet. Die Gebäudetechnik stammt überwiegend aus der Baualtersklasse. Insgesamt besteht größerer Renovierungsbedarf. An dem Grundstück wurde bereits im Jahr 1996 Wohnungseigentum begründet (2 WE). Die genaue Raumaufteilung entnehmen Sie bitte den beigefügten Grundrissen.
Eckdaten
Baujahr 1984/1985
Wohnfläche ca. 235 m² zzgl. ausgeb. KG
Grundstück 697 m²
Wohneinheiten 3
EG-Wohnung ca. 135m²
DG-Wohnung ca. 100m²
KG-Wohnung ca. 55m²
Garage /Stellplätze 1 / 3
Heizung Gaszentral
Kaufpreis € 649.000,-
Energieausweis V – 133 kWh/(m²*a), Gas, Bj. 85, E
Bei Abschluss eines notariellen Kaufvertrages ist der Käufer und für den Verkäufer verpflichtet, jeweils eine Maklercourtage in Höhe von 2,5 % inkl. ges. MwSt., bezogen auf den vereinbarten Kaufpreis, an die Firma Erdtmann Immobilien zu zahlen. Die Maklercourtage ist mit Abschluss des notariellen Kaufvertrages verdient und zur Zahlung fällig. Die Grunderwerbsteuer sowie die Notar- und Gerichtskosten sind vom Käufer zu tragen. Alle Angaben über diese Immobilie beruhen auf Informationen, die uns der Auftraggeber zur Verfügung gestellt hat. Für die Richtigkeit, Aktualität und Vollständigkeit dieser Angaben übernehmen wir keine Gewähr. Irrtum und Zwischenverkauf vorbehalten.
| Angebots-ID: | 577 |
| Verfügbar ab: | 01.09.2022 |
| Kaufpreis: | 649.000,- EUR |
| Provision für Käufer: | 2,5% inkl. MwSt. |
| Provision für Verkäufer: | 2,5% inkl. MwSt. |
| Zimmer: | 8 |
| Schlafzimmer: | 5 |
| Badezimmer: | 3 |
| Wohnfläche: | 235 m² |
| Grundstücksfläche: | 697 m² |
| Gesamtfläche: | 305 m² |
| Baujahr: | 1982 |
| Objektzustand: | gepflegt |
| Ausstattungskategorie: | Standard |
| Heizungsart: | Zentralheizung |
| Befeuerungsart: | Gas |
| Wert des Endenergiebedarfs: | 133 |
| Art des Energieausweises: | Verbrauchsausweis |
| Energieeffizienzklasse: | E |
| Baujahr lt. Energieausweis: | 1985 |

























